產品簡介
海吉雅公司GJXC-型高效聚結型油水分離器是根據粗粒化原理及淺池理論研制而成的一種新型油水分離器,該設備處理效率高(>90%),停留時間短(為常規分離設備的35~50%),占地面積少(為常規分離設備的50%),采用壓力式密閉運行,運行平穩、安全可靠,收油排泥方便。適用于流量波動的來水,便于實現自動化控制。
產品特性
1.設計合理,密閉運行無污染
2.雙級分離區,促進細小油珠及固體小顆粒的去除。
3.耐腐蝕的聚結材料合理級配,有利于油珠聚結。
型號說明

技術參數

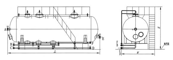
安裝尺寸

GJXC-型高效聚結斜管除油器
新信息來源:發布時間:2014/8/23 16:11:12
產品簡介
海吉雅公司GJXC-型高效聚結型油水分離器是根據粗粒化原理及淺池理論研制而成的一種新型油水分離器,該設備處理效率高(>90%),停留時間短(為常規分離設備的35~50%),占地面積少(為常規分離設備的50%),采用壓力式密閉運行,運行平穩、安全可靠,收油排泥方便。適用于流量波動的來水,便于實現自動化控制。
產品特性
1.設計合理,密閉運行無污染
2.雙級分離區,促進細小油珠及固體小顆粒的去除。
3.耐腐蝕的聚結材料合理級配,有利于油珠聚結。
型號說明

技術參數

安裝尺寸
